シェアハウスmoe

シェアハウスmoe 外観

「moe(もえ)」とは、ハワイ語の「Nānā no moe(夢を忘れないという意味)」から名付けました。

特徴

  • ● 新築2階建て、個室、完全バリアフリーの充実した設備の中で、安心、安全に暮らせるよう配慮された住まいです。
    閑静な住宅の一角に位置し、周辺にはバス停、コンビニ、医院などの生活環境も充実しています。
  • ● グループホーム、シェアハウスといった2つの住環境の中から、ご自身にあった生活スタイルを選択していただくことが可能です。
    身体や知的に障がいのある方など、障がい特性に関わらず、多様な方々にご入居いただけるよう、24時間、365日のサポート体制を整えています。
  • ● ショートスティ専用の居室を1部屋完備。
    定期的なレスパイト利用や宿泊体験などにも対応しております。
  • ● 栄養バランスの取れた食事を施設厨房にて調理、提供します。

グループホームmoe 定員(10名)

住み慣れた自宅の近くで、家庭的な生活環境の中、自立した生活が送れます。
また、24時間、介護スタッフが常駐、見守り・介護等のサービス提供を行います。

短期入所moe 定員(1名)

グループホーム内にある、完全個室の居室をご利用いただけます。
将来に向けた入所体験も受け付けております。

シェアハウスmoe 定員(11名)

車いすなどの生活になっても暮らせることのできる、安全、安心な住まいです。
夜間も介護体制を完備。個々に合わせた生活スタイルの中で、多様なサービスを活用しながら、想いに沿った生活が実現できるよう支援を行います。

ご利用料金目安

家賃 月額 35,000円
水光熱費 月額 13,000円
食材料費 月額 30,000円
日用品費 月額 10,000円
電化製品使用料(*) 500円/台/月
洗濯費(*) 3,000円/月
その他日常生活において通常必要となるものに係る費用... 実費相当額

※体験利用の際は、家賃・水光熱費・日用品費・食材料費は、利用日数分をお支払いいただきます。
※(*)は利用される方のみ

設備紹介 (クリックで写真を拡大)

新築2階建て、全館バリアフリーの充実した環境の中で、ご自身にあった暮らしをサポートさせていただきます。

外観

外観

ロビー

ロビー

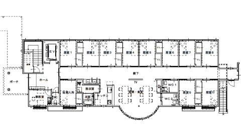
間取り図

間取り図

充実したアメニティ設備で、安心の生活を送っていただけます。

トイレ

トイレ

洗面所

洗面所

浴室

浴室

居室スペースは自由にご活用いただけます。
収納スペースやナースコール、WifI設備などもご利用いただけます。

居室の扉と収納

居室の扉と収納

居室の様子

居室の様子

居室の様子

居室の様子

施設概要

施設概要 木造2階建て
居室概要 グループホーム10室、シェアハウス11室、ショートステイ1室
設備 収納、エアコン、照明器具、緊急通報システム
共用設備 キッチン、浴室、トイレ、エレベーター